Собственикът на провинцията често спира преди въпроса за издигането на индивидуална сграда под банята. Разположението на банята, където миещата и парната стая са отделни, е решаващ момент, където е важно да изучите чертежите и наръчниците стъпка по стъпка. Площта на такава къща обикновено ви позволява да монтирате сградата, дори и в малки по размер площи. Ако говорим за пълномащабни територии, тогава за специална сграда можете да определите пълноценно място, например, предвидете изграждането на 6x6 баня с таванско помещение.
съдържание
Какво да запомните да включите в минималния план
Независимо от размера на площта, която се планира да се използва за изграждането на къщата за баня, трябва да се вземе предвид наличието на традиционни помещения. Тези отдели включват парната стая, отделението за миене и помещението за релакс между приемите на пара.
Доброто разположение на банята 6x6 е ключът към надеждността на конструкцията като цяло и изпълнението на нейната функция. Пропуските в проекта обикновено не отнемат много време. Вредните последици от грешките могат да настъпят още през следващия сезон.

Всеки потребител очаква добра и бързо загрята парна баня от банята, която поддържа парата за дълго време, оптималната температура в отдела за миене и непрекъснат достъп до водоснабдяване.
Индикатор за обмислена и изградена баня с ума е стегнатостта на цялата структура и всяка стая поотделно. Ако мивката и парната са отделни, ще е необходимо да се прегледа целия проект като цяло и да се предоставят допълнителни опции за усилване.

При разработването на проекти с малки размери е напълно оправдано преместването на отделни стаи извън периметъра на сградата. Така че в провинцията можете лесно да оборудвате стая за релакс извън банята или да я комбинирате с подобни помещения.
Самопланирането на частна сграда не носи нищо в себе си. Винаги можете да го използвате като готови проекти или да експериментирате малко върху децата си.
Ако вземем предвид структурата на баня в лятна вила, почти винаги трябва да приемем, че площта на земята ще бъде ограничена. Независимо от това, оформлението на банята 3x4 (3x4) е много компактно и на практика е най-популярно.
Проектът на баня за лятна резиденция
За да инсталирате нова сграда за парна стая, трябва да изберете свободна зона. Специални критерии за разпределение на земята се определят единствено от собственика.
Например, който има предразположение към настинки, той предпочита да постави вана по-близо до жилищна сграда.
Ако човек мисли като инженер, той ще се интересува от технически въпроси, например как е по-удобно да се доставят тръбопроводи за доставка или газопровод.
С всичко това не искам банята да е близо до мястото на заминаване на природни нужди (освен ако, разбира се, нямате септична яма) или боклук.
Често потребителите предпочитат да се присъединят към банята с основната структура, осигурявайки правилното ниво на топлинна и пароизолация.

Друго направление за планиране на мястото за монтаж на сграда под банята се основава на данни от геоложки изследвания. Разбира се, ако оформлението на банята 4x6 включва създаването на дренаж за изхвърляне на вода, тогава изискванията за качеството на почвата може да не са толкова високи.

Често традиционният проект не предполага създаването на специална канализационна система, в този случай се планира подсилена основа и се избира място с ниско ниво на подпочвените води.
Местата с голямо натрупване на влага обикновено се изключват от проекта 5x6. В този случай е необходимо да издържате отстраняването от следните обекти:
- от кладенеца - най-малко 5 метра;
- от тоалетната и боклука - най-малко 8 метра;
- от жилищна сграда - най-малко 8 метра.
Ако наистина имате късмет и сайтът ви е близо до водата, има смисъл да поставите баня с достъп до резервоара. В този случай проблемът с планирането и инсталирането на басейна се отстранява, веднага след парното можете да се потопите в прохладната вода на езерото.
Второто предимство на близостта на обекта до водата е възможността за организиране на автономно водоснабдяване
Когато проблемът с мястото е решен, струва си да помислите за самия проект. Планът отразява такива параметри като броя и предназначението на помещенията, размера на отделенията за парно и миене, наличието на допълнителни отделения, брой етажи.
Противно на настоящите стереотипи, дизайнът на банята е скъп. Това е така, ако закупите строителна схема в строителна компания. Никой обаче не забранява използването на разработки на шаблони. В тази статия ние предоставяме необходимите чертежи и диаграми, според които можете да разработите вашия личен проект за подреждането на функционални елементи.
Например, оформлението на вана с размери 6x4 може лесно да бъде получено пропорционално от проект с различна кратност, където мивката и парната ще бъдат разположени отделно или в съседство.
Прочетете също:
Съблекалнята, като неразделен елемент от руската баня
Основната функция на такова помещение е организацията на въздушната междина между парната стая и достъпа до улицата.
Ако проектът не включва такова отделение, парната ще се охлади достатъчно бързо, което ще доведе до пълно разочарование на потребителя. Дори оформлението на 3x4 баня, където пералнята и парната стая ще бъдат отделни, могат да включват всички необходими помещения.
Съблекалнята е елемент от структурата на капитала.
Най-често това е малко отделение от тип с две врати. Единият води директно към улицата, а другият към отдела за миене.
Тамбурът често е оборудван с маса за отдих, места за съхранение на дрехи или сушилни. В случай, че се разработва голям проект за баня, те често използват техниката за комбиниране на вестибюл със стая за релакс.
В този случай стегнатостта не се нарушава, се получава стая с приличен размер, която изпълнява две функции наведнъж. Комбинирането на вестибюла с зона за релакс е препоръчително в случаите, когато банята е запазена за зимата.
Перални и парни стаи: характеристики на планирането
Разбира се, със създаването и последващото развитие на проекта за баня, собствениците на крайградски райони не се сблъскват често. Добре е, когато човек с определен опит участва в проучването на терена и проучването на плана. Независимо от това, следвайки стандартите за изграждане на баня, не може да се притеснявате от възможни грешки поради ограничени направления на дизайна.
Голям брой трудности са породени от настройката на пералните и парните помещения, техния размер, местоположение.

В случай на малко пространство за строителство, тези помещения ще трябва да бъдат направени не толкова големи.От друга страна, ако планирате да реализирате проект за сауна, гарантирано ви е бързо затопляне на парната стая, просто трябва да разбиете главата си над вътрешното устройство и избора на подходящи материали.
Специалистите съветват да посетят вече завършени проекти, например в изграждането на кооперации или с приятелите си.
За любителите на чисто руска баня, където условията изискват ниска температура и голямо количество гореща пара, най-добре е да обмислят проекти с комбинация от перални и парни помещения.
Целта е напълно оправдана, защото този проект ще спести ценно пространство, което може да бъде освободено в парцел с ограничен размер за розова градина или зеленчукови култури.
Оформление на банята 3x5, където отделно са пералнята и парата: въпроси подробно
От една страна изглежда, че дизайнът на банята не представлява особени затруднения. Трябва да се има предвид, че по-голямата част от времето може да отнеме подготвителна работа. Това е проучване на естеството на терена, състоянието на почвата, поведението на подземните води през променящите се сезони. Също толкова важно за банята е изборът на подходяща основа.
Размерите 3x5 веднага предполагат ограничен бюджет и пространство за развитие.
Всички искат банята да стои стабилно и в същото време конструкцията не се оказва скъпа. Съвременните строителни магазини предлагат широка гама от материали и технически устройства за инсталирането на основен обект за дългоочакваната баня. Така че, потребителят може да избере основата на типа лента или купчина. Трябва да се има предвид, че теглото на банята като цяло ще бъде малко, особено ако ще бъде направено от тяхната дървена къща, където мивката и парната са разположени заедно.

Когато помещенията са планирани, тяхното местоположение, ще трябва да очертаете преминаването на всички необходими комуникации. Въпросът често се опростява чрез доставяне на вода самостоятелно. Вярно е, че съвременните технологии позволяват да се организира автономно водоснабдяване до всяка точка на собственото населено място, дори от кладенец. Банята не може да има нужда от електричество.
Също така си струва да помислите над въпроса с вида гориво, в което банята ще се отоплява. Има много опции. Можете да си купите котел, който работи на газообразни или течни горива.
Има и традиционни модели, които отделят топлина от изгаряне на пелети или трупи. Непрактично е да инсталирате електрически котли в баня поради високата цена на ресурса.
Все още остава възможността за инсталиране на комбиниран котел, който може да работи на няколко вида гориво.
Всички очна линия трябва да бъдат предварително договорени с представители на съответните служби. Това трябва да се направи, за да се решат проблемите със сигурността.
Обзаведено пространство
Много атрибути са свързани с банята, във всички стаи на тази сграда винаги има уникален интериор. Обзавеждането, мебелите, масата за чай, рафтовете в парната стая и пейките в стаята за отдих трябва да бъдат минимум при планирането на изграждането на банята.
Ако това е дървена къща, ще трябва да очертаете отворите за входната врата и прозорците, което не може да се направи.
Довършителни работи
В повечето случаи за изграждането на бани в летни къщи или в покрайнините на крайградската зона потребителите предпочитат да използват дървена къща - завършен формуляр, който ще послужи като основа за бъдещо строителство. Разбира се, докато в къщата за трупи няма да има миене и парно помещение. Те винаги могат да бъдат разграничени в общо пространство според предвидения проект.
Метод за довършване на баня с дърво отвътре се е доказал на практика.Естественият материал е екологичен, добре задържа ценната топлина и създава необичаен аромат в стаята. Липа, бор, дъб, трепетлика, ясен и лиственица са добре подходящи като материали за вътрешна декорация.
Тези, които обичат да се отпуснат в атмосфера на стипчива дървесна миризма, се препоръчва да изберат иглолистни дървета.
Допълнителни елементи на проекта - баня с достъп до терасата
Когато планирате баня, са възможни вариации, защото всичко е направено по ваш вкус. Една от възможностите за поставяне на стая за отдих е извеждането й от проекта на улицата. По-скоро това вече няма да е място, а малка площ, украсена с цветя или други елементи от изкуствен пейзаж. Това ще освободи място в самата баня и ще осигури наистина оригинално място за почивка между въздушните процедури в парната.
Проектът с тераса е много подходящ за тези, които предпочитат отдих на открито и ценят всяка част от пейзажа си. В същото време площта, заета от отделенията за парно и миене, може да бъде леко, но намалена, прихващайки размера според предпочитанията.
Терасата в проекта донякъде напомня на голяма просторна веранда с жив плет. Дължината на верандата ще съвпада с дължината на цялата баня 4х4, като се отнема от нея само по ширина.
Характеристики на баня от дънер или бар
Класическата версия на цилиндричните трупи или решетки. Разликата между строителните материали е само в технологията на обработка на дървесината. Основата на такава структура обикновено е блокчейн или кутия. Екологично чистият материал и бързото време за изграждане правят този тип вана най-популярна.
Собствениците на такива сгради могат да спестят от декорация, всичко вече е направено под дървото вътре. Остава само да се грижим за правилното качество на уплътнителните стени и вътрешни помещения, полагайки комуникации.
Стените на банята са обработени със специални съединения, които могат да предотвратят пожар и увреждане на дървесина от гъбички и паразити.
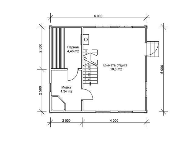
Особено внимание при планирането на баня с размери 5x6, където пералнята и парното помещение отделно (вижте снимката в статията) трябва да се отделят на качеството на дървесината. Той трябва да е добре изсушен, в противен случай при употреба може да възникнат дефекти. Обикновено дървените бани се оформят с отделни стаи, в мрежата има много снимки как изглежда завършена баня от дърво.
Най-новите строителни технологии
Скорошният напредък в строителството не може да заобиколи такъв процес като изграждането на бани. Днес активно се използват методи като конструкция на рамка или формиране на скелет от блокове от пяна.
Рамковата конструкция на бани предполага изпълнението на проекта извън мястото на експлоатация. Производството на по-голямата част от проекта се извършва на конвейерната фабрика на производителя, която получава техническата задача на клиента.
Рамковата баня се довежда до мястото на строителството в неразглобена форма. Монтажът на конструкцията се извършва от екип, който може да се справи с работата си след няколко дни. Теглото на банята е малко, което не налага високи изисквания към основата. Когато разработвате проекта, можете да осигурите удобна веранда или тераса за релакс между посещението в парната. Според съществуващата практика не се препоръчва използването на технологията за изграждане на рамкови многоетажни сауни.

Пяните блокове са отлично решение за изграждане на баня с отделни перални и парни помещения.
За тези, които не искат да издигнат празна стена между отделенията, е възможно да се предвиди за проекта преграда, изработена от закалено стъкло. Така можете да гледате как се чувстват у дома си в парната или да се грижите за децата, които са в басейна.
Подобни проекти се оправдават добре като допълнение към вили. Пяните блокове са екологично чист материал, благодарение на който топлината се задържа добре дори при висока влажност.Структурата на блоковете от пяна е твърда, устойчива на изгаряне, не отделя дим.
Технологията е много подходяща за формиране на многоетажни сгради. Например в долната част ще има баня с отделни стаи, а в горната част има просторна стая за отдих и забавление. Често сауните, изработени от блокове от пяна, се използват специално за разработване на търговски проекти.
Ползите от баня във вашия район са безспорно очевидни. Собственикът на частна къща разполага на свой собствен център за чистота и здраве, който ще служи дълги години за цялото му семейство. Въвеждането на собствен проект е обнадеждаващо, още повече, че практиката за издигане на частни бани е доста обширна. Винаги можете да се поучите от съществуващия опит и всъщност да изработите вашето оформление на 6x6 баня с таванско помещение според снимката и плана.
Във всеки случай задълбочен подход за решаване на проблема ще ви изведе на правилния път. Една умела комбинация от всички елементи на сградата и нейния бюджет ще ви позволи да завършите проекта в най-кратки срокове.
Остава особено важно да се вземе предвид размерът и местоположението на отделните стаи. Използването на съвременни строителни материали днес ви позволява да варирате с оформлението, например, да изградите баня, където мивката и парната са отделно разположени от стаята за релакс и душ.
https://www.youtube.com/watch?v=T3mT_4zsgdk




Защо оранжерията е отворена отгоре?
Оранжерия "Пеперуда", заслужава ли си?
Направете самостоятелно озеленяване на площ от 8 декара: характеристики на планирането и зонирането
Пролетни оранжерии, плюсове и минуси