Подреждането на крайградска зона днес задължително включва изграждането на баня. И къде е банята, трябва да има пещ, която бързо затопля помещенията, давайки "горяща" пара. За да изградите печка за баня със собствените си ръце от метал с резервоар за вода според готовите чертежи няма да бъде трудно. Има много възможности, но най-често собствениците на крайградската зона избират метални печки. Не можете да ги купите, но го направете сами. Материалите са на разположение, технологията е разбираема дори за мъже, далеч от техническите проблеми.
Металните печки за баня днес принадлежат към класа на безопасност според съвременните изисквания, те са по-практични от техните предшественици.
Те са изработени от ламарина с дебелина 4 мм. Дизайнът на новите модели включва специални отделения, в които камъните заспиват за дълго време, поддържайки топлина. Почти всички модели имат резервоари за вода с различен капацитет в структурната структура. Направата на фурна с резервоар за вода днес се превърна в доста често срещан начин да получите отличен комфорт в парна стая.
Пещите имат различни конструктивни устройства и началникът на дома винаги изпълнява индивидуални чертежи в няколко проекции, като взема предвид структурата на банята. Моделът й включва инсталирането на два вида пещни конструкции: затворена и отворена.
съдържание
Затворени пещи
В семейната баня печките от затворен тип са страхотни заради компактните си размери.
За да увеличите топлинния капацитет, се препоръчва обшивката отвън и отвътре да се загради с огнеупорни тухли, със задължителното фиксиране на тухлата с метални щипки.
Тухлената облицовка ще позволи да се отоплява с въглища, докато обичайният дизайн не издържа на топлина на въглища и може да се отоплява само с дърва. Облицованата камина значително удължава времето на работа на пещта от огнеупорна стомана.
В средата на пещта структурно е включена каменна решетка.
За да се предпазят хората от невнимателно докосване на огнената повърхност на метала, страната, обърната към парното, трябва да бъде тухлена.
Каменката и зидарията ще бъдат отлична декорация на парната стая, придайте й индивидуалност и комфорт. Правилното подреждане на отоплителното устройство по отношение на парната стая ще осигури запазване на топлината, отлично загряване и лека пара.
Пещи с отворен дизайн
Основната разлика между пещите на отворено конструктивно устройство е резервоар с малък обем. Печката също остава отворена. Когато такова отоплително устройство е инсталирано в парната стая, това гарантира ефективно отопление на цялата стая. Един прост метод увеличава топлинния капацитет - собственикът, когато инсталира отоплително оборудване, осигурява поцинкован капак за периодично покриване на камъни.
Отличителна черта на конструкцията на устройство за отопление за баня е използването на заварен метод за свързване на метални части на конструкция. Снимка и рисунка ще ви помогнат да направите метална печка за сауна с резервоар за вода, като се заварявате.
Ще ви е необходима заваръчна машина, опитен майстор с уменията да правите висококачествени шевове. Висококвалифициран специалист, както показват чертежите, ще заварява резервоар от котелно желязо, ще го оборудва със стегнат капак, кран на специално устройство.Вписванията на крана и капака трябва да позволяват почистване на резервоара.
Тайната на инсталирането на кран за източване. Входът за крана трябва да бъде поставен на дъното на резервоара. Фитинг за закрепване на подвижен кран се монтира директно към резервоара чрез заваряване. Това ще направи възможно почистването на крана своевременно. Препоръчва се използването на сферичен клапан.
Комбинирани пещи за дизайн
В случай на комбинирани дизайни на пещи се подрежда камина с два клапана - това е тяхната основна характеристика.
Решетката, дюзите с диаметър 10 и 14 см и вентилаторът са включени в конструктивната структура. Такива пещни конструкции предполагат използването на закалени стоманени листове с дебелина 5 мм при производството им. Със собствените си ръце можете да направите метална пещ за баня, да я оборудвате с резервоар за вода, удобен кран за напълно източване на водата за почистване на резервоара.
Дизайнът за баня с комбиниран тип е проста бюджетна опция. Те се отопляват с дърва, насищайки парната стая с ободряващия аромат на горяща дървесина.
Както можете да видите, да направите сами печка за баня за баня с комбиниран резервоар за вода не е толкова трудно, ако имате рисунки и видеоклипове с вас.
Прочетете също:
Време е за проектиране на печка за баня
Моделът на печката на специални части - тръби и бъчви - е най-приемлив за извършване на ръка, ако има изходен материал със съответните параметри. Първоначално началникът на дома трябва да помисли дали планираната печка е подходяща за размера на изгражданата баня, внимателно начертайте всички чертежи, за да получите отличен резултат.
Важно е да изберете местоположението на отоплителния комплекс и да вземете предвид в неговия размер всички необходими компоненти:
- пещта;
- нагревател;
- решетка;
- комин;
- клапан;
- резервоар за вода;
- пръстеновидна стоманена връзка.
В покрива на сградата е необходимо предварително да се предвиди дупка, където ще се изтегли тръба за отстраняване на дим. Следователно моделът на пещта, особено изпълнен независимо, трябва да се обмисли едновременно с дизайна на банята.
Разнообразие от форми
Формата е съществен фактор за решаване на въпроса за ефективността на отоплението, лекотата на използване и дизайна на парна баня.
Използват се дизайни на фурни с различни форми:
- правоъгълна;
- хоризонтална;
- цилиндрична;
- къдрава.
Правоъгълните отоплителни устройства се считат за по-удобни за употреба. Тайната се крие именно в наличието на ъгли, които по време на работа не се нагряват, осигурявайки максимално запазване на формата на цялата конструкция за достатъчно дълго време. В допълнение към дългия експлоатационен живот, формата на пещта осигурява равномерно нагряване, намалява нагряването на цялата стена. Поради това цялото помещение се затопля максимално, осигурява се равномерен баланс на топлинните потоци. Правилното отопление увеличава експлоатационния живот на пещта, поради ъглите тя има високи показатели за механична стабилност.
Цилиндричните и кръгли пещни конструкции са най-малко способни да издържат на високите температурни ефекти. Ето защо за своите стени занаятчиите използват по-плътен и подсилен материал.
Монтаж на пещта във ваната
Печката за сауна е разположена или така, че вратата на пещта да влезе в съседната стая, или директно в парната, където се полагат дърва за огрев. Този момент се разглежда на етапа на проектиране, което е важно при избора на модел на пещ.
Първият етап от монтирането на метално отоплително устройство е полагането на основата. За него се използва тухла с високи огнеупорни свойства, закрепена с хоросан от висококачествен бетон.
Тухлата се полага задължително в няколко реда.Ако сградата на пещта не е планирана да бъде тухлена, тогава тя трябва да бъде инсталирана на разстояние не по-малко от 1 м от стената. Всички условия за монтаж са заложени в чертежите, разработени от проектанта или самия началник на дома на етапа на подготовка за изграждането на банята.
Пещта се монтира върху фундамента само след като най-накрая се втвърди - това е предпоставка за инсталирането на метална конструкция. Ако банята е разположена отделно от жилищната сграда, тогава поради малкия си размер, тя подлежи на температурни промени. Поради тази причина се полага плитка основа, особено здрава и устойчива на замръзване.
Препоръчва се да покриете частта от стената, в която отоплителното устройство ще бъде покрито с изолационен материал от фолио - това ще бъде допълнително отражение на топлината и отлична защита на огъня на сградата.
Това се отнася само за конструкции, изработени от метал, не облицовани с камък.
Когато дизайнът на конструкцията на пещта трябва да бъде разположен малко по-близо до стената, тогава облицовката с тухли е задължително изискване за пожарна безопасност. Ако металната пещ е покрита с тухла, трябва да се спазват размерите на обшивката - височина 120 мм, ширина 80 мм. Ако тези размери са надвишени, тухлата се затопля за дълго време, не дава достатъчно топлина в парната. Такъв детайл задължително е посочен на чертежите и е видим на фото-инструкциите за производството на пещ за метална баня. Тухлената облицовка осигурява допълнителна експлоатационна безопасност, придава на помещението естетичен вид.
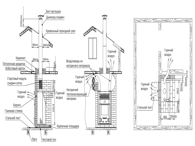
Важни точки на комина
Металният отоплителен комплекс трябва да включва добре изолиран комин. За тяхното устройство се препоръчва използването на сандвич с тръби със специален топлоизолационен слой в структурата между външния и вътрешния корпус.
Елементът за преминаване на тавана е оборудван на кръстовището на тавана с тръбата, това осигурява възможност за изход на продуктите от горенето.
Тайната на затоплянето на комина. Метална печка за баня включва железен комин в своята структура. Изпълнява се по заварен начин, от специални тръби. Разтопявайки печката в студената стая на банята, собствениците често наблюдават дим и лошо изгаряне. За да избегнете това, се препоръчва да загреете комина, да изгорите най-малко 0,5 часа в пещта за най-малко 0,5 минути и след това да започнете обичайния разпалване.
Пещи за баня от вертикален и хоризонтален тип
Можете самостоятелно да изградите метални конструкции с различно подреждане на пещта - вертикална и хоризонтална.
Хоризонтална пещ е включена в структурата на пещта с резервоар, вертикална пещ е включена в структурата на пещта, направена от тръби с голям диаметър.
Тръбна пещ е по-устойчива на висока температура, изгаря по-малко от пещ с резервоар и следователно продължава по-дълго.
Отоплението на печката ви позволява да зададете индикатори за влажност и температура в парна стая, въздухът от горящи дърва за огрев е от голяма полза за тялото, когато се използват дърва за огрев от същия вид - бреза, дъб или иглолистни дървета.
Печка за баня с резервоар за отопление на вода и джобен нагревател създава комфортна атмосфера във всички помещения за баня, а външният й дизайн може да се превърне в изключителен „връх“, който отразява вкусовите предпочитания, ако го направите сами, като използвате нашите съвети, видеоклипове и чертежи.




Защо оранжерията е отворена отгоре?
Оранжерия "Пеперуда", заслужава ли си?
Направете самостоятелно озеленяване на площ от 8 декара: характеристики на планирането и зонирането
Пролетни оранжерии, плюсове и минуси